Espaço para comunicar erros nesta postagem
A comunidade do Jardim Tropical ganhará um importante equipamento de saúde, para atender os moradores. A Unidade de Saúde da Família - USF, será construída no local através do município de Jequié, que publicou na tarde desta sexta-feira, 29/08, o edital de concorrência pública n.º 020/2025, que tem como objetivo: contratação de empresa especializada de engenharia para construção de Unidade de Saúde da Família (USF), na localidade Jardim Tropical/Jequié-BA.
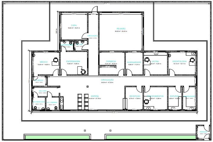
O local contará com diversos espaços para atendimentos médicos e reunião, veja abaixo:
- Sala de esterilização;
- Sala de procedimento;
- Consultório Médico;
- Consultório de enfermagem;
- Sala de vacina;
- Consultório odontológico;
- Sala de reunião;
- Copa, recepção, sala de expurgo, sala de espera e outras.
O valor total da obra é de R$ 1.393.588,38 e será financiada através do governo federal, por intermédio do Fundo Municipal de Saúde.
Veja algumas imagens de como será a nova unidade:
Publicado por:
Rafael Gomes
Natural de Ipiaú e radicado em Jequié, onde reside desde 2012. Jornalista com registro n.º 0007012/BA, atua como redator e gerente de mídias da 95 Fm de Jequié. Escritor com dois livros de poesias publicado, atua com maior ênfase no editorial de...
Nossas notícias
no celular
95 FM